Padova - Zona Ind.le Pd Est

Commerciali in Affitto

Informazioni principali

Riferimento:
A000246
Tipologia:
Commerciali
Contratto:
Affitto
Prezzo:
€ 1.700
Comune:
Padova
Zona:
Zona Ind.le Pd Est
C. energetica:
D - Ipe 73,75 Kwh/mq anno
Ascensore:
Numero camere:
5
Numero bagni:
3
Riscaldamento:
Centralizzato
Posto auto:
Posto auto scoperto
Età immobile:
1980
Condizioni interne:
Buone
Condizioni esterne:
Buone
Aria condizionata:
Esposizione:
Tripla
Piano:
3
Scarica pdf

Descrizione

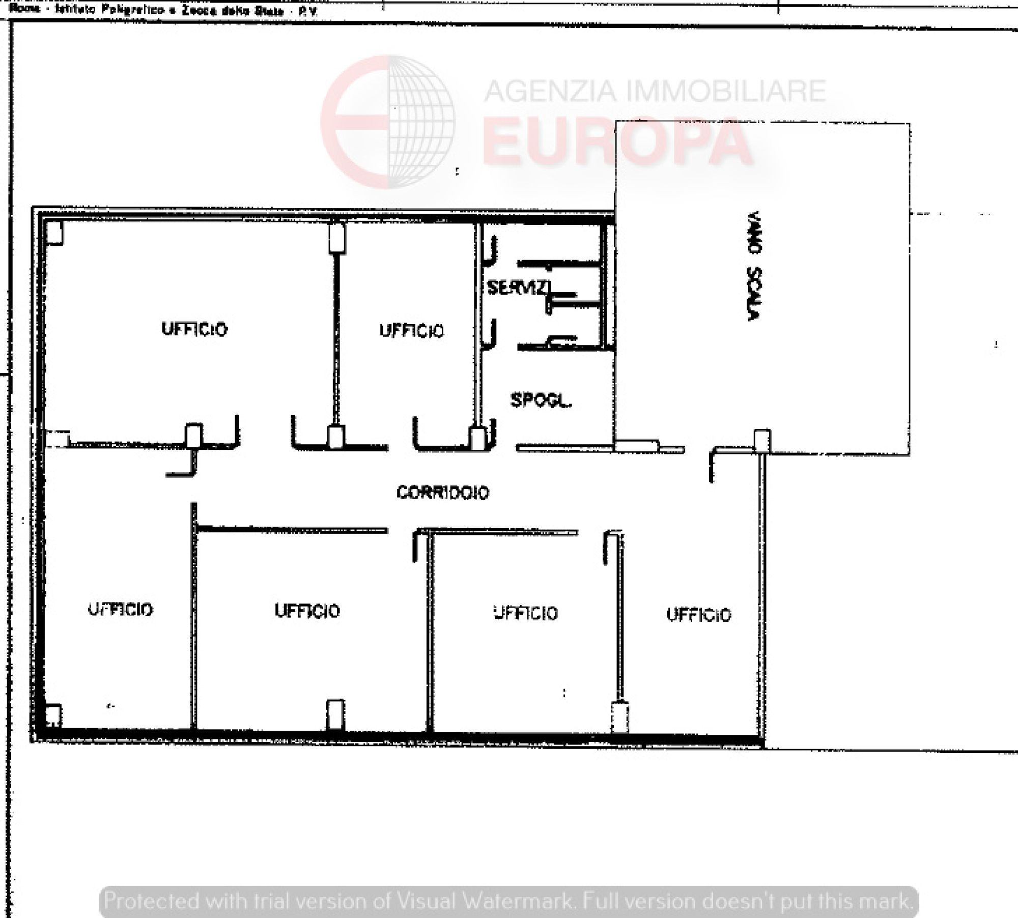
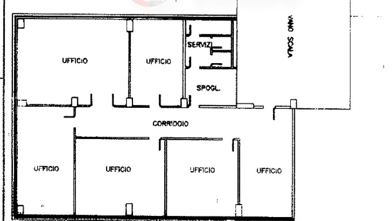
PADOVA ZONA INDUSTRIALE EST - AFFITTASI UFFICIO DI CIRCA 230 MQ.

Piano 3° - Ampia luminosità 

Suddiviso con pareti - 5 locali e 3 servizi

Ampie possibilità di parcheggio + 3 posti auto assegnati

Riscaldamento e raffrescamento centralizzati con termoconvettori

ZONA IDEALE DAL PUNTO DI VISTA COMMERCIALE

Caratteristiche

  • Superficie m2: 230
  • Camere: 5
  • Piano: 3
  • Aria condizionata
  • Ascensore
"La presente scheda non costituisce contratto"

Galleria fotografica

Altre informazioni?
Inviaci un messaggio per questo immobile

{"base":"https://agenziaimmobiliareeuropa.it/"}

OK Questo sito o gli strumenti terzi da questo utilizzati si avvalgono di cookie necessari al funzionamento ed utili alle finalità illustrate nella cookie policy Ulteriori informazioni.